
项目地址:长沙·南宸府
项目面积:110平米
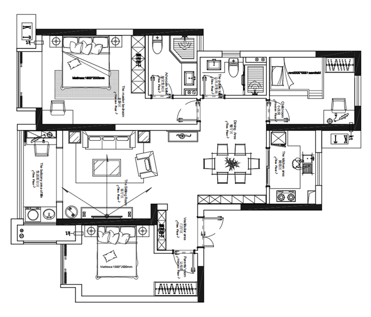
项目户型:三室两厅
项目风格:北欧风格
整体设计:吴 腾
软装公司:梵米尼家居
服务内容:设计+改造+整体软装
.png)
设计说明
今天带给大家的是一套北欧风格案例,位于长沙的南宸府,业主是从事美容行业的,对于家居的色彩和搭配比较注重,对于生活的品质也比较注重。经过一番沟通后,我们将整体的风格定向为北欧风格。
客 厅
这套房本身楼层不是特别高,所以我们在设计的时候将阳台打通与客餐厅结合,这样不仅让整个客厅的容积更大不显得拥挤同时又能很好的解决采光的问题。在阳台的两侧各设计了洗衣柜和储物柜,这样更大化的利用阳台空间。

沙发背景在色彩上面我们使用了高级灰和灰蓝色的艺术墙漆,搭配墙面挂画来提升整个空间的层次感和观赏感。
在家具的选择是以原木色+浅色为主,贴合整个设计色彩上面的合理性,适当的辅以绿植和创意性的动物造型饰品修饰,营造自然清新的田园生活气息。
餐 厅
.jpg)
餐厅厨房位置不是很大,为了增加生活的便利,酒柜设计没有成整排柜子,这样更加方便以后在生活中实用性,玻璃柜门里面采用层板灯来增加就餐氛围,餐桌椅以及墙面的配饰我们都采用自然元素的设计。
主 卧
主卧床头背景采用蓝色的墙漆搭配白色的布艺网红床,非常简洁温馨,在床头的对面我们搭配了一款深蓝色带金属质感的网红梳妆台,凸显女主人对于生活中的那份精致与美好。
父 母 房
在与业主沟通的过程中业主表达出父母对于房间的要求朴素实用一些,所以我们在父母房没有做过多的设计,比较简单。在进门处我们设计了一组到顶的衣柜来增强整个空间的储物功能。儿童房因为忘记拍照了,所以没有进行实景地展示,现场非常漂亮。好了,今天的分享就到这里了,以后会经常更新更多精装房案例,想看什么风格都可来电咨询400-0731-041!
—END—
About FIMINI
梵米尼家居
精装房装饰专家
FIMINI|专注精装房整体软装
今天已有266位业主获取了软装报价
材料费(元)
31362
人工费(元)
31362
设计费(元)
31362
您家的软装预算(元)
93078
以上价格将会根据您填写的信息进行计算
影响预算的因素有:面积、户型,所以请您详细填写
